250 Husch Road
Offered at: $733,000
MLS®: 10380526
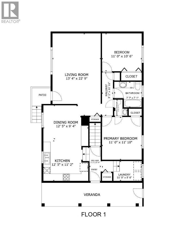
Welcome to 250 Husch Road, a warm and inviting single family home located in the heart of Rutland, one of Kelowna's most convenient and family oriented neighbourhoods. This beautiful residence offers 4 spacious bedrooms and a functional layout perfect for growing families, or investors looking for strong rental potential. Set on a generously sized lot, the home features great curb appeal with a classic rancher design, a covered front porch, and mature landscaping. Inside, large windows bring in natural light throughout the living areas, creating a bright and comfortable atmosphere. The practical floor plan offers easy one level living, with additional potential in the lower level for storage, recreation, or future updates. Outside, the property includes ample yard space ideal for gardening, play, or outdoor entertaining. A covered carport provides convenient parking, while the driveway offers additional space for multiple vehicles. Located steps from schools, parks, transit, shopping, and all the amenities of Rutland, this home provides exceptional value in a rapidly growing area of Kelowna. Whether you're looking to move right in or add your personal touch, 250 Husch Road is a solid opportunity in a fantastic neighbourhood. (id:6769)
Quick Stats
Key Home Data
3
BATH(S)
4
BED(S)
2310
SQFT
YES
SHOWING AVAILABLE
Property Type:
Single Family Home Ownership:
Freehold
Payment Calculator
Calculate your monthly mortgage payment.
Mortgage Amount
$
Amortization
years
Payment Freq.
Interest Rate
%
Calculating...
All About the Details
See specific details below.
Neighbourhood Statistics
Get to know your neighbourhood.
Similar Properties
Other properties you might like.
Request a Showing
Have questions about this property?
window.onload = function() {
let myiFrame = document.getElementById("widgetCta");
let doc = myiFrame.contentDocument;
doc.body.innerHTML = doc.body.innerHTML + '';
}






