588 Mccurdy Road
Offered at: $495,000
MLS®: 10368743
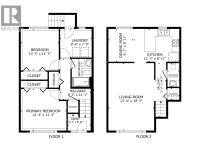
Welcome to 588 McCurdy Road, a bright and spacious end-unit townhome situated on a large corner lot in the heart of North Rutland. Step inside to find a warm and inviting main level featuring a functional open layout, plenty of natural light, and a comfortable living area that flows easily into the dining space and kitchen. The kitchen offers great counter space, a breakfast bar & an open view of the fenced backyard, perfect for keeping an eye on kids or pets while you cook. Downstairs, the walkout basement opens directly into your private, fully fenced yard, a rare find at this price point! Whether it’s backyard BBQs, a garden space, or a safe spot for your pets, this yard can handle it all. Plus, with no dog size restrictions, your big furry family members are more than welcome. The renovated full bathroom, updated finishes, and flexibility of two levels of living space are ideal for families, roommates, or guests. This small, well-managed complex offers low strata fees, two parking stalls, and plenty of green space to enjoy. The location is unbeatable, just a 5-minute walk to Pearson Elementary, close to middle and secondary schools, the bus route, shopping, restaurants, and recreation. Whether you’re looking for your first home, a smart investment, or a comfortable downsizing option. Move-in ready with quick possession available, this home delivers unbeatable value, space, and lifestyle. (id:6769)
Quick Stats
Key Home Data
2
BATH(S)
2
BED(S)
1120
SQFT
YES
SHOWING AVAILABLE
Property Type:
Single Family Home Ownership:
Strata
Payment Calculator
Calculate your monthly mortgage payment.
Mortgage Amount
$
Amortization
years
Payment Freq.
Interest Rate
%
Calculating...
All About the Details
See specific details below.
Neighbourhood Statistics
Get to know your neighbourhood.
Similar Properties
Other properties you might like.
Request a Showing
Have questions about this property?
window.onload = function() {
let myiFrame = document.getElementById("widgetCta");
let doc = myiFrame.contentDocument;
doc.body.innerHTML = doc.body.innerHTML + '';
}






