#109 2220 Shannon Ridge Drive
Offered at: $969,150OFFERED AT: $969,150
Offered at: $969,150
MLS®: 10374192
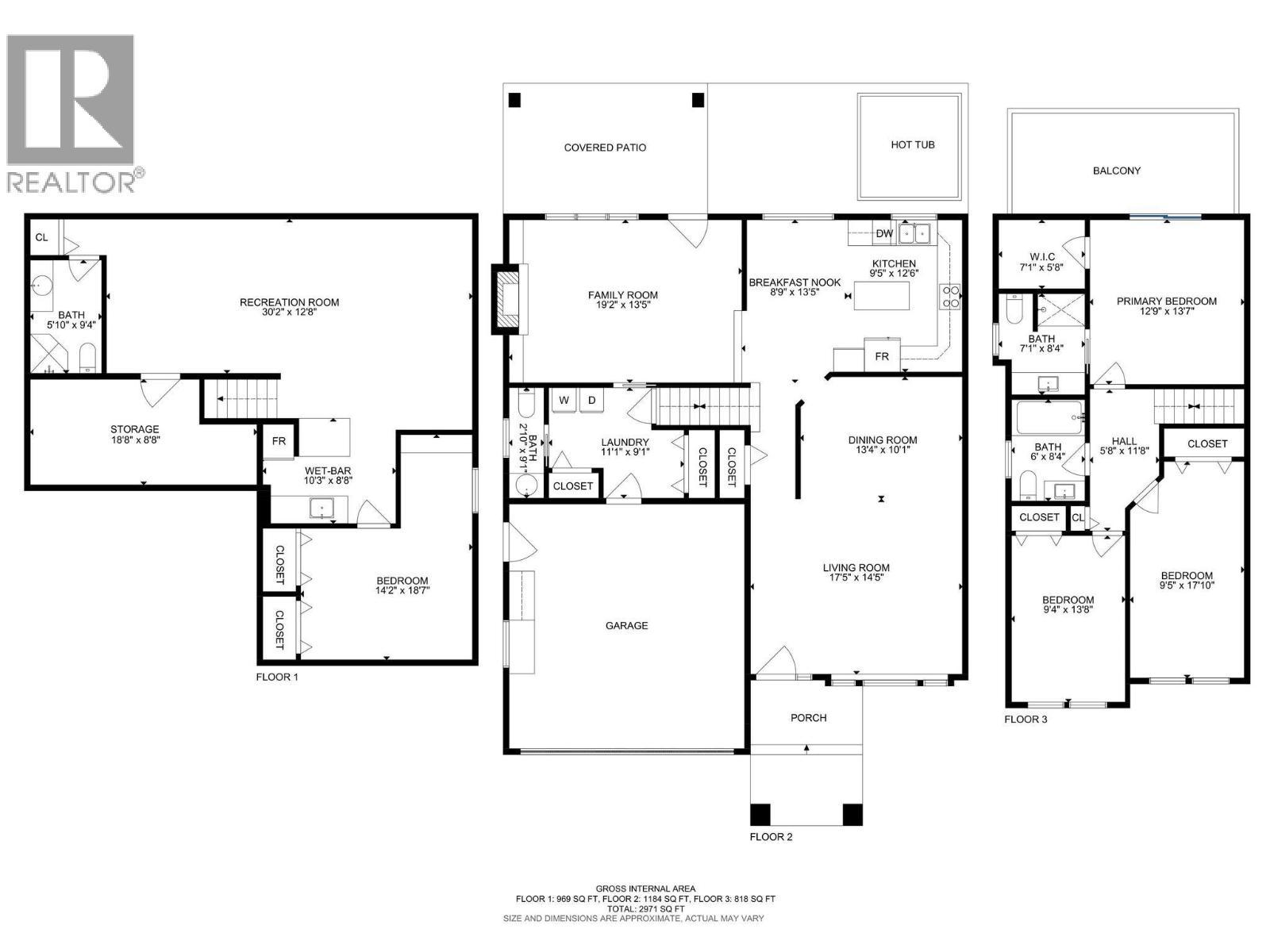
Welcome to this beautifully updated 4-bedroom, 4-bathroom home in the heart of Shannon Lake—one of West Kelowna’s most sought-after family neighbourhoods. Designed for both style and comfort, the main floor features rich engineered hardwood, a cozy living room with custom built-ins, gas fireplace, and pot lighting. The renovated kitchen shines with quartz countertops, soft-close cabinetry, and stainless steel appliances. Step outside to a private, low-maintenance backyard complete with a new concrete patio, hot tub area, updated fencing, and gutter guards. Upstairs, the spacious primary suite offers a walk-in closet, spa-inspired ensuite, and access to a private deck with stunning views of the mountains, Shannon Lake and golf course. Two additional bedrooms and a full bathroom complete the upper level. The finished lower level adds exceptional versatility with a large rec room featuring a wet bar, fourth bedroom, updated bathroom, and brand-new carpeting throughout, including both staircases. Thoughtful custom built-ins enhance the laundry room and living area. Additional upgrades include a new furnace and A/C, radon mitigation system, updated window coverings, closet organizers, and refreshed landscaping. Ideally located within walking distance to schools and Shannon Lake Regional Park, this move-in-ready home offers the perfect blend of location, lifestyle, and modern upgrades. (id:6769)
City
West Kelowna
Subarea
Shannon Lake
Lot
0.11
Construction Date
1999
No details available.
British Columbia, Canada, V4T2T6



